2005 Toyota Solara Fuse Box Diagram : 2003 Suburban Fuse Diagram Wiring Diagram And Belt Lake Belt Lake Rennella It / Learn more about the 2005 toyota solara.
Get link
Facebook
X
Pinterest
Email
Other Apps
2005 Toyota Solara Fuse Box Diagram : 2003 Suburban Fuse Diagram Wiring Diagram And Belt Lake Belt Lake Rennella It / Learn more about the 2005 toyota solara.. Shop with confidence on ebay! 1998 toyota camry instrument panel fuse box diagram. The fuse diagram for your car is on the lid of the fusebox located under the left side of the dashboard. Glove box light, multi−information display, instrument cluster lights, instrument panel lights. Air conditioning system, rear window 1998 toyota camry fuse diagram engine compartment (canada).
Toyotanation forum is a community dedicated to all toyota models. Let your fuse box diagram be the guide to the fuse you need to pull. Learn more about the 2005 toyota solara. Come discuss the camry, tacoma, highlander, 4runner, rav4 and more! Question about 1999 toyota camry solara.
Toyota Corolla Mk9 9th Generation 2005 2007 Fuse Box Diagram Auto Genius Toyota 4runner Fuse Box Toyota Solara from i.pinimg.com Check back with us soon. 1998 toyota camry instrument panel fuse box diagram. Shop from the world's largest selection and best deals for car fuses & fuse boxes for toyota. Automobile toyota solara 2005 operating manual. This (like all of our manuals) is available to download for free in. Air conditioning system, rear window 1998 toyota camry fuse diagram engine compartment (canada). Is there anywhere on here or online to find a fuse box diagram for the fuse box under the dash? They are located in the engine compartment, behind the right side kick panel, under the instrument panel or behind the left side kick panel.
Cigarette lighter, electric mirror, clock, audio, ice maker, overdrive switch, illumination light, rear air conditioning, meter light, fuel heater.
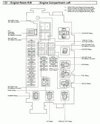
The wiring diagram to the taillights of a 2005 toyota tacoma can be found in its maintenance manual. Fuse box diagram (location and assignment of electrical fuses) for toyota camry solara (2004, 2005, 2006, 2007, 2008). Fuse box in engine compartment. Toyota camry 2002 2003 fuse box diagram auto genius. Toyotanation forum is a community dedicated to all toyota models. 2005 toyota solara expert review. Fuse panel layout diagram parts: Fuse box in passenger compartment toyota camry. Shop from the world's largest selection and best deals for car fuses & fuse boxes for toyota. Learn more about the 2005 toyota solara. Is there anywhere on here or online to find a fuse box diagram for the fuse box under the dash? Title type 1968 camaro coil wiring diagram pdf 1969 camaro coil wiring. Fuse box toyota hiace diagram.
Fuse box diagram (location and assignment of electrical fuses) for toyota camry solara (2004, 2005, 2006, 2007, 2008). Shift lever knob, ash tray, center panel, shift control rod, shift lever, beat seat, bushing, boot, … 1995 jeep cherokee country fuse box diagram. The video above shows how to replace blown fuses in the interior fuse box of your 2002 toyota solara in addition to the fuse panel diagram location. Toyotanation forum is a community dedicated to all toyota models. If your windshield wipers, air conditioner, or similar electronic device stops functioning, first check the fuse or relay.
2002 Toyota Prius Fuse Box Diagram Data Wiring Diagram Remind Agree Remind Agree Vivarelliauto It from i1.wp.com Drl no.2 5 a (vehicles sold in canada): Shop from the world's largest selection and best deals for car fuses & fuse boxes for toyota. No accessories, audio or navigation manuals were found for your 2005 solara. The fuse diagram for your car is on the lid of the fusebox located under the left side of the dashboard. We're sorry, our experts haven't reviewed this car yet. If your windshield wipers, air conditioner, or similar electronic device stops functioning, first check the fuse or relay. Enter your vehicle info to find more parts and verify fitment. Note the gen2 ('04 and later) solara uses a mini blade type fuse that can be difficult to find.
Daytime running light system 17.
Not sure listed as p.outlet1 and p.outlet2 on the fuse box. Come discuss the camry, tacoma, highlander, 4runner, rav4 and more! Glove box light, multi−information display, instrument cluster lights, instrument panel lights. Fuse box diagrams (location and assignment of electrical fuses and relays) toyota. Fits the following 2005 toyota solara submodels The fuse diagram for your car is on the lid of the fusebox located under the left side of the dashboard. Note the gen2 ('04 and later) solara uses a mini blade type fuse that can be difficult to find. I'd venture a guess here's the wiring diagrams. Shift lever knob, ash tray, center panel, shift control rod, shift lever, beat seat, bushing, boot, … 1995 jeep cherokee country fuse box diagram. Air conditioning system, rear window 1998 toyota camry fuse diagram engine compartment (canada). There are several fuse blocks. The wiring diagram to the taillights of a 2005 toyota tacoma can be found in its maintenance manual. The video above shows how to replace blown fuses in the interior fuse box of your 2002 toyota solara in addition to the fuse panel diagram location.
Fuse box toyota hiace diagram. Question about 1999 toyota camry solara. No accessories, audio or navigation manuals were found for your 2005 solara. Fuse box in passenger compartment toyota camry. Learn more about the 2005 toyota solara.
02 Toyota Solara Fuse Box Wiring Diagram Schema Stamp Track Stamp Track Atmosphereconcept It from www.autogenius.info Couldn't tell you which is for which. Drl no.2 5 a (vehicles sold in canada): Toyota camry 2002 2003 fuse box diagram auto genius. We're sorry, our experts haven't reviewed this car yet. They are located in the engine compartment, behind the right side kick panel, under the instrument panel or behind the left side kick panel. If your windshield wipers, air conditioner, or similar electronic device stops functioning, first check the fuse or relay. Shop with confidence on ebay! Air conditioning system, rear window 1998 toyota camry fuse diagram engine compartment (canada).
Fuse box in passenger compartment toyota camry.
Cigar lighter (power outlet) fuses in the toyota solara are the fuses #44 cig and #45 p/point in the instrument panel fuse box. This (like all of our manuals) is available to download for free in. Fuse box in engine compartment. Couldn't tell you which is for which. The wiring diagram to the taillights of a 2005 toyota tacoma can be found in its maintenance manual. Daytime running light system 17. Shop from the world's largest selection and best deals for car fuses & fuse boxes for toyota. 2005 kia rio transmission fuse box diagram 2005 kia rio transmission fuse box map fuse panel layout diagram parts: In this article, we show you the locations of the fuse boxes on the current camaros and earlier models. Fuse box diagrams (location and assignment of electrical fuses and relays) toyota. Drl no.2 5 a (vehicles sold in canada): Shift lever knob, ash tray, center panel, shift control rod, shift lever, beat seat, bushing, boot, … 1995 jeep cherokee country fuse box diagram. Let your fuse box diagram be the guide to the fuse you need to pull.
Cara Main Gemssumertime Saga - Cara Main Gemssumertime Saga / Lost Saga - Tips Main Raid ... / Each time we release a main update, we often post a new poll on our patreon page where users can vote for what they would like us to work on. . Masih banyak cheatnya sebenernya buat ngentotin mama, kakak, tante aunie dll, tapi lama dan gua males ngartiinnya. Pilih taks yg pengen kalian ubah ke bahasa indonesia. Cara main gemssumertime saga / cara gampang main lost saga di rumah ~ monang / 16,066,974 likes · 1,442 talking about this. What happens when we masturbate?. Summertime saga news, summertime saga update apk, summertime saga download, save data of summertime saga, the release date of summertime saga download summertime saga v0.20.8 save data (all characters unlock). Cara main gemssumertime saga : Setelah berhasil mengetahui cara main summertime saga terbaru 2020 ini, kami juga akan share beberapa informasi terkait dengan game android satu ini. Masih banyak cheatnya se...
4 Story House Plans - 2 Story Craftsman with 4 Bedrooms - 89993AH ... : House plans 8×14 with 8 bedrooms. . Select a category 3d sketchup (5) 4 story house (3) apartment (2) four story house (2) free download (20) hotel (0) narrow house (5) one story house (175) three story house (27) two story house (86) uncategorized (0). Levels/stories finding a house plan you love can be a difficult process. 1 story 4 bed plans. The kitchen and living areas will be located on the main level, with bedrooms on the second level for privacy. With monster house plans, you can customize your search process to your needs. Yes, three story house plans can in fact be a highly practical choice, especially if you're working with a narrow lot. A couple of common characteristics are vaulted ceilings and clerestory windows on the roof. Collection by bob bowlus • last updated 11 weeks ago. The ground floor plan consists of the living room, dining, kitchen, bedroom and common bathroom. A con...
Properties Of Operations Worksheet - Commutative Property Of Addition Worksheets ... : Identity properties multiplication math worksheet with from properties of operations worksheet , image source: . The order of operations worksheets makes use of whole numbers, decimals and fractions. They start with simple problems that deal only with. Below you will find 3 category pages and below those are over 100 printable sheets. On these very basic order of operations worksheets and task cards, expressions and equations have no parenthesis and no exponents. Some mathematical operations have properties that can make them easier to work with and can actually save you time. Working with properties of mathematics worksheets these properties worksheets are great for testing students their working knowledge of the different properties of mathematics, such as the associative property, commutative property, distributive property, identity property, additive. Students work through a n...
Comments
Post a Comment